Mmmm..... cookies...

Afdeling

Løvenholmvej
229-0

Løvenholmvej 30, 32, 42, 44, 78, 80, 114, 116, 118, 120, 154, 156, 192, 194, 218, 220, 222, 224, 242, 244, 246, 248, 266, 268, 270, 272, 290, 292, 294, 296, 325, 327

Boliginfo

Adresser

Løvenholmvej 16-334, 267-349,
8930 Randers NØ

Boligtype

Antal boliger

32

Energimærke

Andet

Altan: Ja
Elevator: Nej
Husdyr tilladt: Ja

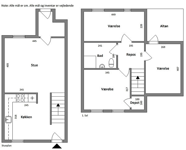
Værelser

4

Størrelser

97-98 m2

Husleje

7288-8289 kr.

Indskud

12870-18670 kr

Ventetid

3 mdr. - 9 mdr.

Kommunen råder over enkelte boliger i ét plan.

Karenstid 2 år.

Der er fortrinsret ved skilsmisse for familier med børn, der bor i afdelingen.

Skriv dig op her!